島林 護
かつては地域社会において大きな存在感を放っていた国民ハゼナですが、現在は、その重要性を失いつつある中で、限られた地域、ボヘミアとモラヴィアでのみ盛んに行われ、スポーツ愛好家の間でも注目度は低いものとなっています。
1986年の統計によれば、国民ハゼナ協会の登録会員数は8,640人で、チェコスロバキア体育協会(ČSTV)ランキングでは23位にランクされていました。それから11年後の1997年には、クラブ数75、会員数6,247人という数字が報告され、スポーツ協会におけるランクは25位となりました。
この競技の根幹を成すのが、「ボヘミア対モラヴィアの島嶼間試合」です。1922年に初めて行われた女子チームの試合や、1942年に記録された男子チームの試合など、その歴史は古く、第二次世界大戦中には大いに人気を博しました。現在でも、これらの試合が行われる日はハゼナの祝祭日として親しまれています。
チーム戦は第二次世界大戦まではエリミネーション(勝ち抜き)方式で行われ、その後は共和国チャンピオンの決定戦を含む地域選手権として継続されました。男女のリーグ戦は1941年から開始され、毎年チェコ共和国チャンピオンが表彰されています。また、下位カテゴリーでは地域選手権やI.リーグ、II.リーグも盛んに行われています。
最大の祭典として知られるのが、男子のボヘミア選抜とモラヴィア選抜、女子の西選抜と東選抜の対戦です。しかし、モラヴィアには女子リーグチームがほとんど存在しないのが現状です。そして、ユースカテゴリーでは、ボヘミア対モラヴィア戦と同じ日に、地域別選抜によるトーナメントやスーパーカップが開催されます。地域の若手選手たちにとって、大きな舞台となっています。
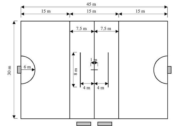
1975年に国民ハゼナ協会によって制定された国民ハゼナのルールは、今日でも広く実施されています。ピッチのサイズは長さ45m、幅30mで、3等分されています。ゴールの大きさは幅2メートル、高さ2.4メートルです。基本ルールには、3人のフォワードがアタッキングサードとミドルサードにのみ許可されることが含まれています。また、2人のミッドフィルダーは、ゴールエリアを除いてセントラルおよびディフェンスサードで移動することが許可されます。ディフェンダーとゴールキーパーは中央フィールドと守備フィールドで自由に移動でき、必要に応じてゴールエリアに入ることもできます。
プレー時間は2×30分で行われます。プレーヤーはボールを保持することができる時間が2秒間と制限されています。ボールを頭上で投げたり、最大2回のドリブルで動かすことが許可されています。相手への攻撃はファウルとみなされ、その後は攻撃の場所からフリースローが行われます。プレーヤーは制限区域内でのみ移動することができ、それ以外の場合はフリースローが与えられます。
国民ハゼナ競技場

図5 TJ Lokomotiva České Budějovice ... web サイトより